Entrega inmediata
Zamora 110
Condesa, Ciudad de México
Depa de 89 m² desde
$6,650,000 MXN
*Valores estimados con el departamento de 89 m²
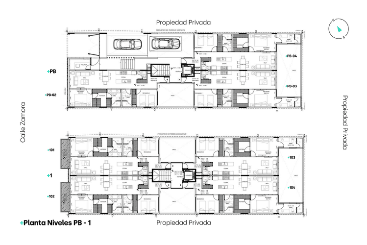
Tipos de depas
Tipo: 304
Apartado + Enganche
$1,330,000 MXN
- MensualidadesNo aplica
- Último pago$5,320,000MXN
- Precio total$6,650,000MXN
Cierra el mejor trato directamente con el constructor
Ciudad de México, Ciudad de México
Condesa
- CCTV
- Elevador
- Seguridad 24/7









































